Jump to navigation
Jump to content
Explore UAB
MyUAB
BlazerNet
Canvas
Email
Future Students
Visit UAB
opens a new website
Apply to UAB
opens a new website
Request Info
opens a new website
Undergraduate Students
Advising
opens a new website
Undergraduate Catalog
opens a new website
Request Info
opens a new website
Research and Service Learning
opens a new website
Graduate Students
Graduate School
opens a new website
Graduate Catalog
opens a new website
Online Degrees
opens a new website
Parents & Family
Services
opens a new website
Resources
opens a new website
Family Visits
opens a new website
Alumni
Get Involved
opens a new website
Benefits
opens a new website
Events
opens a new website
Faculty & Staff
Office of Provost
opens a new website
Human Resources
opens a new website
Faculty Resources
opens a new website
Staff Council
opens a new website
Researchers
Office of Research
opens a new website
Harbert Institute
opens a new website
CCTS
opens a new website
Patients
UAB Medicine
opens a new website
UAB Dentistry
opens a new website
UAB Optometry
opens a new website
Athletics
Campus Map
Give
Calendar
News
Contact Us
Colleges & Schools
Arts
&
Sciences
Collat School
of Business
Dentistry
Education
Engineering
Graduate School
Health Professions
Honors College
Medicine
Nursing
Optometry
Public Health
Explore UAB
Science and Engineering Complex
A New Building for the College of Arts and Sciences
Search
This Site
All Sites
Search
Search
Home
Timeline
Why a New Building
Photos and Site Plans
Floorplans
Giving Opportunities
Learn More About The College
Opens an external link.
Science and Engineering Complex
Close
Home
Timeline
Why a New Building
Photos and Site Plans
Floorplans
Giving Opportunities
Learn More About The College
Opens an external link.
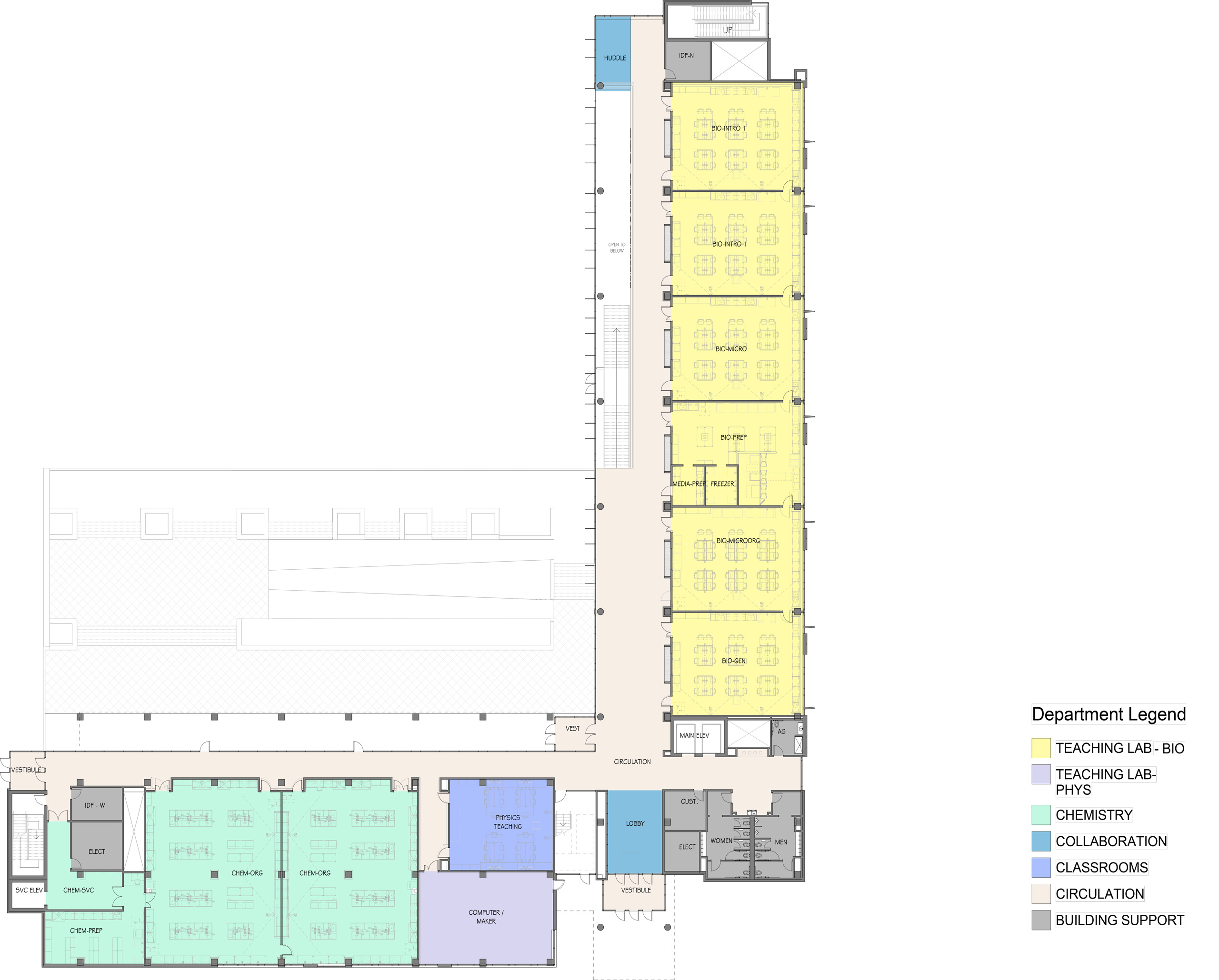
Draft Floorplans
Floor 1
Floor 2
Floor 3
Floor 4