Explore UAB

Blount features two- and four-bedroom apartments. Blount Hall is open to Sophomores and up.

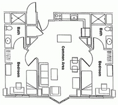
Blount Hall Floorplan 2br
Blount Hall Floorplan 4br
  • Blount Hall Exterior
Front Desk Staffed 24/7

Front Desk Staffed 24/7

Laundry Facilities

Laundry Facilities

Vending Machines

Vending Machines

Print Station

Print Station

Community Spaces

Community Spaces

Oven

Oven

Full Size Refrigerator

Full Size Refrigerator

WiFi & Ethernet

WiFi & Ethernet

Cable TV Connection

Cable TV Connection

RATES

ADDRESS

1001 14th Street South
(Your room number)
Birmingham, AL 35205
(205) 934-6228

DIMENSIONS

4 Bedroom
Room Dimensions: 8'8" * 10'8"
Closet: 3'3" Wide

2 Bedroom
Room Dimensions: 9'3" * 12'11"
Closet - 3'3" Wide

Dresser: 20"L x 24"W x 18 H
Desk: 23.75"L x 42"W x 30.25"H
Window: 46"L x 47.5"W