The 231,000 square-foot residence hall is located near the Campus Green in the housing core of the campus— the south half of the block bordered by 9th and 10th Avenue South and 16th and 17th Streets. The 720-bed residence hall consists of dedicated study spaces, a storm shelter, multi-use office space, and a dining venue with three food vendors and seating capacity for 250.
Front Desk Staffed 24/7
Laundry Facilities
Vending Machines
Print Station
Study Rooms
Community Spaces
Microwave
Mini Refrigerator
WiFi & Ethernet
Cable TV Connection
RATES
ADDRESS
1600 10th Avenue South
(Your mailbox number)
Birmingham, AL 35205
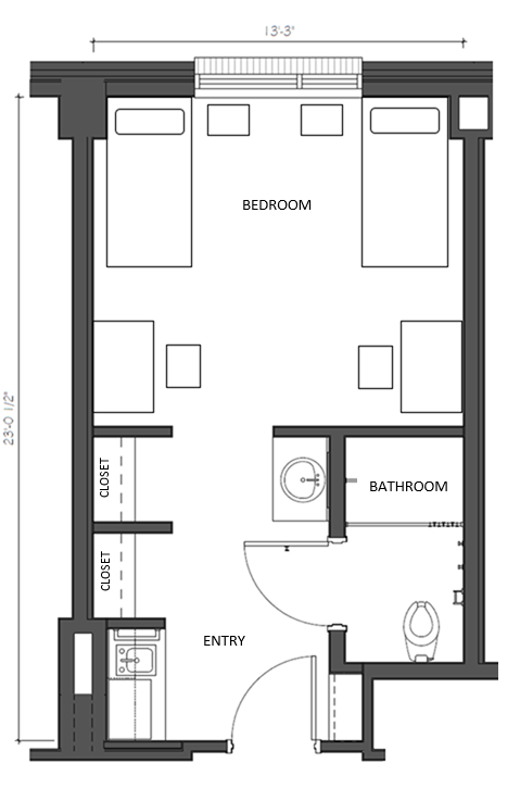
DIMENSIONS
Closet: 35 in Wide
Bed: 42 in * 7 ft
Dresser: 24L x 30W x 18H
Desk: 24L x 42W x 30H
Window: 67 ½ W x 78H
